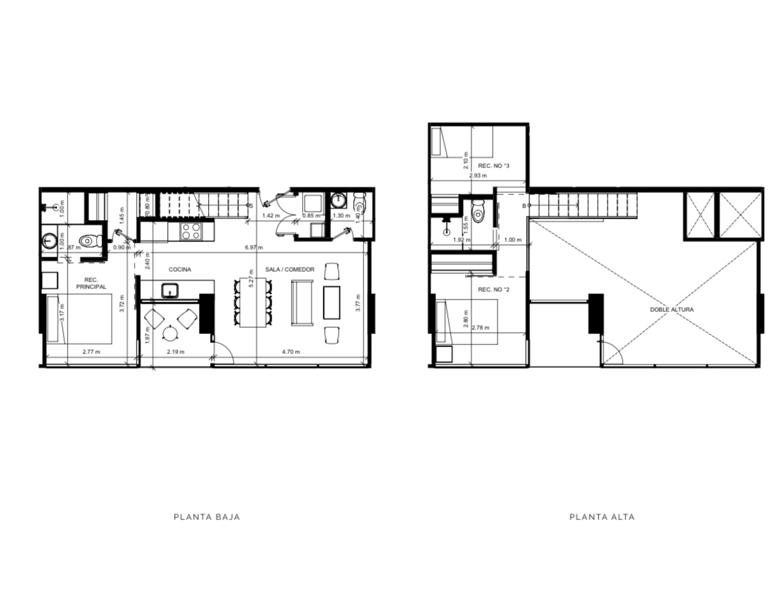
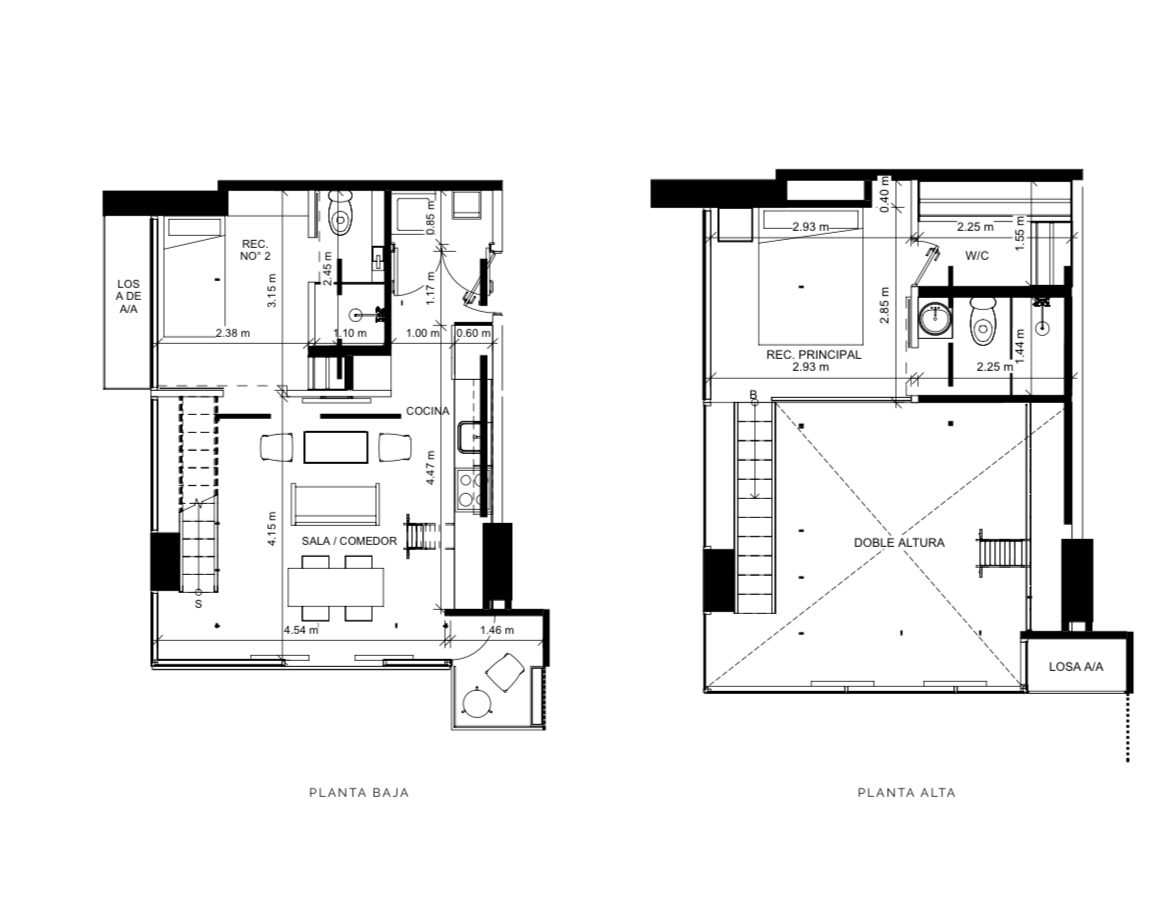
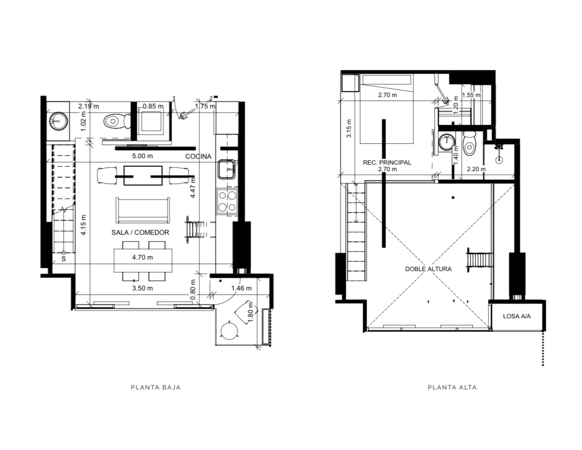
Estos maravillosos inmuebles cuentan con un área privada desde 49 m2 hasta los 82 m2. Ofrecen de 1 cómoda alcoba y 3, asimismo 1.5 baños o los 2.5. Sus precios varian a partir de $240.000 hasta $334.000, dependiendo del metraje de la propiedad. Ubicados en Coco del Mar, Panamá, son una práctica y moderna opción. El proyecto se basa en el minimalismo, tecnología y modernismo; el cual busca llevar un equilibrio entre la comodidad y el disfrute constante. Esta enfocado en dar la valoración merecida a la inversion de sus compradores, que podrás encontrarlo tanto en los inmuebles, como en las áreas comunes. Cuenta con licencia para manejar rentas a corto y largo plazo, brindándote la oportunidad de disfrutar de tu propiedad mientras generas ingresos adicionales de manera segura. La zona donde se encuentra ubicado, tiene diversos puntos de accesos a la ciudad. Además, está a solo unas cuadras del famoso Parque Omar, perfecto para realizar actividades al aire libre con diversa vegatación. Entre sus caracteristicas internas encontramos, una cocina con concepto abierto y una anexa zona de lavandería. Todos los ambientes de los apartametos están ubicacados estratégicamente para mayor espacio y funcionalidad. No menos importante, los inmuebles tienen sistemas de cerradura e iluminación inteligente. Sin duda, este conjunto es la mejor opción para aquellas personas que buscan un lugar cómodo y lleno de modernidades. Ofrece una hermosa y privilegiada vista panorámica, además de contar con excelentes características internas y externas. ¡No espere más! Aprovecha la excelente oportunidad de estas últimas unidades y disfruta de un hogar cómodo y rodeado de todos los placeres de la vida ciudadana. Te acompañamos durante todo el proceso de compra y gestuón de hipoteca. Cada oficina es de propiedad y operación independiente. –––––––––––––––––––––––––––––––––––––––––––––––––––––––––––––––––––––––– These wonderful properties have a private area from 49 m2 to 82 m2. They offer 1 comfortable bedroom and 3, as well as 1.5 bathrooms or 2.5. Their prices vary from $240,000 to $334,000, depending on the square footage of the property. Located in Coco del Mar, Panama, they are a practical and modern option. The project is based on minimalism, technology and modernism; which seeks to strike a balance between comfort and constant enjoyment. It is focused on giving the deserved value to the investment of its buyers, which you can find both in the properties and in the common areas. It has a license to manage short and long-term rentals, giving you the opportunity to enjoy your property while generating additional income safely. The area where it is located has various access points to the city. In addition, it is just a few blocks from the famous Omar Park, perfect for outdoor activities with diverse vegetation. Among its internal features we find an open-concept kitchen and an adjoining laundry area. All the rooms in the apartments are strategically located for greater space and functionality. No less important, the properties have intelligent locking and lighting systems. Without a doubt, this complex is the best option for those looking for a comfortable place full of modern features. It offers a beautiful and privileged panoramic view, in addition to having excellent internal and external features. Don't wait any longer! Take advantage of the excellent opportunity of these last units and enjoy a comfortable home surrounded by all the pleasures of city life. We accompany you throughout the entire purchase and mortgage management process. Each office is independently owned and operated.
Nombre:
Daniela Ocampo
Email:
comercial@casahabitatgroup.com
Teléfono móvil:
311 3052872
| 2 | 2 | 64 m² |
| 2 | 3 | 136.92 m² |
San Francisco
| 3 | 2 | m² |
